One Bedroom or Office Spaces

Prefabricated One‑Bedroom & Office Spaces by
We Build‑Um in QLD

 We have included a selection of our one bedroom and office/studio style buildings below.  We can also custom make any building to suit your desired floor plan. For more information on our designs or a customised floorplan, please do not hesitate to contact us.

One Bedroom Studio/Bedsit

Great for an office or single room requirements. This can be built to include a bathroom, kitchenette or robe. These can be made from 6m long up to 12m long and at either 3.5m or 4.5m wide.

Pictured is a 6×3.25m building. 

One Bedroom

A single bedroom with ensuite, combined kitchen, dining and lounge room, perfect to house the older children or parents in the backyard or to rent out for additional income. You can have a deck added on for additional cost, as per the drafted images.

Open Room/Office

An open plan room, perfect for an office space, storage or getaway for those older children or adults. Windows and doors can be adjusted to suit your individual tastes and needs.

Bathroom Block

A bathroom block complete with two full bathrooms including a shower, toilet and sink. Ideal for site areas, camping grounds or caravan parks requirements.

Office or Bedroom

A single room complete with a bathroom including a shower, toilet and sink as well as a small kitchenette. Set this up as an office space as shown, or use it as a bedroom or studio.

Large One Bedroom

A large one bedroom, self sufficient building complete with a great sized main bedroom, bathroom with dual sinks, separate toilet, large laundry with lots of added storage space and a beautiful open plan loungeroom and kitchen, perfect for those weekends entertaining friends and family.

Office Space or Small Single Room

A cosy 5×3.5m office space suitable for those tight spaces or smaller office requirements. This building can come complete with air-conditioning, LAN points and ceiling fans. Door and window sizes can be adjusted, as well as placements to built your ideal space, suitable to your location or desires.

Office Space or Small Single Room - With Built-in Deck

A lovely 7×3.5m living space suitable for those smaller areas. This building can come complete with air-conditioning and ceiling fans. Our buildings are fully customisable to build your ideal space, suitable to your location and desires. 

Office or Living Space

A cosy 8×4.5m office space suitable for a small to medium size office. This building can come complete with air-conditioning, LAN points and ceiling fans. Let us fit out this stunning modern space with custom cabinetry to suit your office dreams.

Beautiful louver windows and modern external lighting set this building out from the rest as a beautiful entry point for your business needs.

Alternatively this good sized room would be an ideal teenagers retreat, pool house, or even an additional bedroom, short stay or workers accommodation.

Large One Bedroom Home

A large one bedroom house measuring 10x8m with an optional deck with roof built on site. This building can come complete with air-conditioning, LAN points and ceiling fans. Let us fit out this stunning modern space with custom cabinetry to suit your modern home dreams.

​Optional on site decking can be quoted on a job to job basis to complete this beautiful house.

Medium One Bedroom Home

A medium sized one bedroom house measuring in at 45sqm, complete with one bedroom, bathroom, kitchen and a large living/dining space. This building can come complete with air-conditioning, LAN points and ceiling fans. Let us fit out this stunning modern space to suit your style.

Optional on site decking can be quoted on a job to job basis to complete this beautiful home.

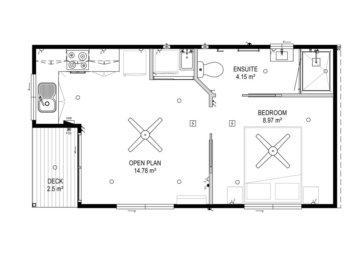
The Swagman

The Swagman is a cosy one bedroom house measuring in at 36sqm, complete with one bedroom, ensuite, kitchen and a comfortable living space. This building comes complete with all internal fit outs included and many upgrade options available, if desired. Let us fit out this stunning modern space to suit your style.

Optional on site decking can be quoted on a job to job basis to complete this beautiful home.

Scroll to Top
Download Brochure
Download our Brochure

Enter your details below to download